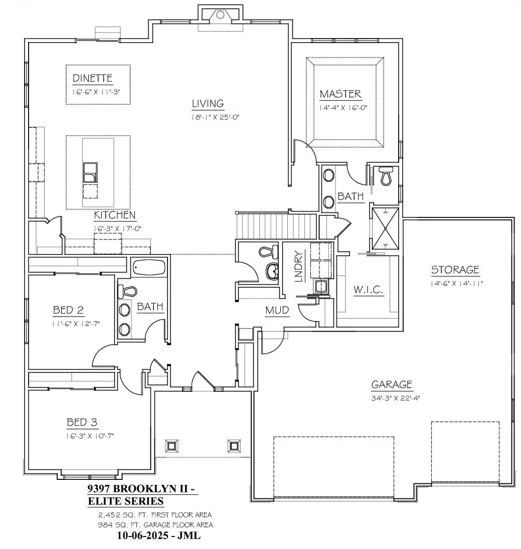
Overview
- Updated On:
- April 2, 2026
- 3 Bedrooms
- 2.5 Bathrooms
- 3 Garages
- 2,452 ft2
Description
Brooklyn Elite Features:
3 Bedrooms / 2.5 Bathrooms / Elite Series / Split Ranch Design
8’ Poured concrete foundation wall / (1) egress slider window per plan design
Basement drain / vent rough-in for future full bathroom
Ceramic tiled shower w/decorative listello in master bathroom / shower over tub in family bathroom
Bathroom vanities & beveled mirrors / prefab granite or equivalent vanity tops
Double sinks in master bathroom & family bathroom
Spacious walk-in closet in master bedroom suite / satin nickel closet shelving
9’ Main floor ceilings: pitched ceiling in living room / tray ceiling in master bedroom
Box-tray ceiling in kitchen/dinette / wide millwork / paneled doors / lever-style door handles
Elite series kitchen cabinets / staggered w/cabinet crown molding per plan design / cabinet hardware
Granite or equivalent kitchen countertops / backsplash / kitchen island w/sink / spray faucet
Spacious pantry closet / built-in SS dishwasher / SS microwave oven / garbage disposal
Direct-vent gas projected fireplace ~ facing & mantel as designed on plan
Main floor laundry/mud room w/drywall lockers, closet, cabinets & sink as designed
Carpet / wood / ceramic tile flooring package
Gas connection to range area & dryer area
High-efficiency furnace / 50-gallon water heater / central air (low returns)
200-amp electrical service / bedroom ceiling lights / interior/exterior recessed lighting per plan
Partial beltline stone facade / covered front porch w/prairie-style box posts per builder’s plan
Double side-lights / 6-panel entry door / transom window / keypad deadbolt
Maintenance-free vinyl windows / window grids on all elevations / open dormer
Hardi-plank siding / maintenance-free trim & corner boards on all elevations
Gable roof w/dimensional shingles / aluminum gutters, downspouts, soffit & fascia
3+ Car garage w/storage / paneled doors / 3-pane window panels / openers / remotes / keypad
2” x 6” exterior house walls; 7/16” OSB sheathing





