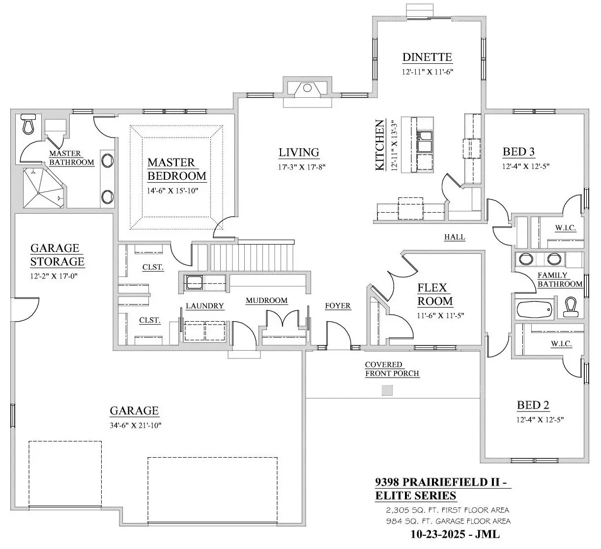
Overview
- Updated On:
- April 2, 2026
- 3 Bedrooms
- 2 Bathrooms
- 3 Garages
- 2,305 ft2
Description
Prairiefield Elite Features:
3 Bedrooms / 2 Full Bathrooms / Flex Room / Elite Series / Split Ranch Design
8’ Poured concrete foundation wall / (1) egress s1ider window per plan design
Basement drain/vent rough-in for future full bathroom
Corner ceramic tiled walk-in shower w/decorative listello in master bathroom / 2 shower heads
Bathroom vanities / beveled mirrors / prefab granite or equivalent vanity tops
Double sinks in master & family bathrooms / shower over tub in family bathroom
Master bedroom suite w/spacious walk-in closet / satin nickel closet shelving
9’ Main floor ceilings / 10’ ceilings: foyer, living, flex room, kitchen/dinette / tray ceiling in master
Knockdown drywall w/rounded corners / walls painted one-coat neutral color
Wide millwork / paneled doors / lever-style door handles
Elite series kitchen cabinets w/decorative hardware / cabinet crown molding per plan
Granite or equivalent kitchen countertops / kitchen backsplash / flush kitchen island w/sink
Pantry closet / built-in SS dishwasher / SS microwave / garbage disposal / spray kitchen faucet
Direct-vent gas projected fireplace ~ facing & mantel as designed on plan
Main floor laundry/mud room w/drywall lockers, closet, cabinets & sink as designed on plan
Carpet / wood / ceramic tile flooring package / gas connection to range area & dryer area
High-efficiency furnace / 50-gallon water heater / central air (low returns)
200-Amp service / bedroom ceiling lights / interior/exterior recessed lighting per plan design
Partial stone facade / covered front porch w/box post / false dormers as designed
Double side-lights, half-glass entry door w/transom window / keypad deadbolt
Maintenance-free vinyl windows / window grids on all elevations
Hardi-plank siding / maintenance-free trim & corner boards on all elevations
Hip roof / dimensional roof shingles / aluminum gutters, downspouts, soffit & fascia
3+ Car garage / deep storage area / prairie window panels / openers/remotes /keypad
Garage service door / 2” x 6” exterior house walls; 7/16” OSB sheathing





